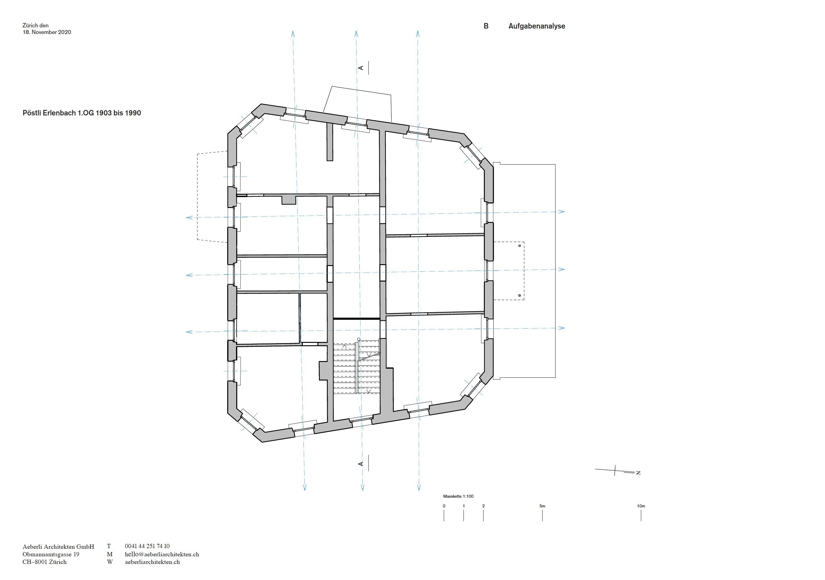
Die Liegenschaft befindet sich inmitten des Dorfzentrums, unmittelbar neben dem Bahnhof in Erlenbach. Dabei handelt es sich um das ehemalige Postgebäude, welches inventarisiert ist und im Inventarblatt als ortsbildprägender Bau an zentraler Lage beim Bahnhof beurteilt wird. Als Schutzziel wird die integrale Erhaltung der originalen Substanz, insbesondere der Fassadengestaltung und –detaillierung formuliert. Nach Möglichkeit auch eine Teilrekonstruktion verlorener Elemente.
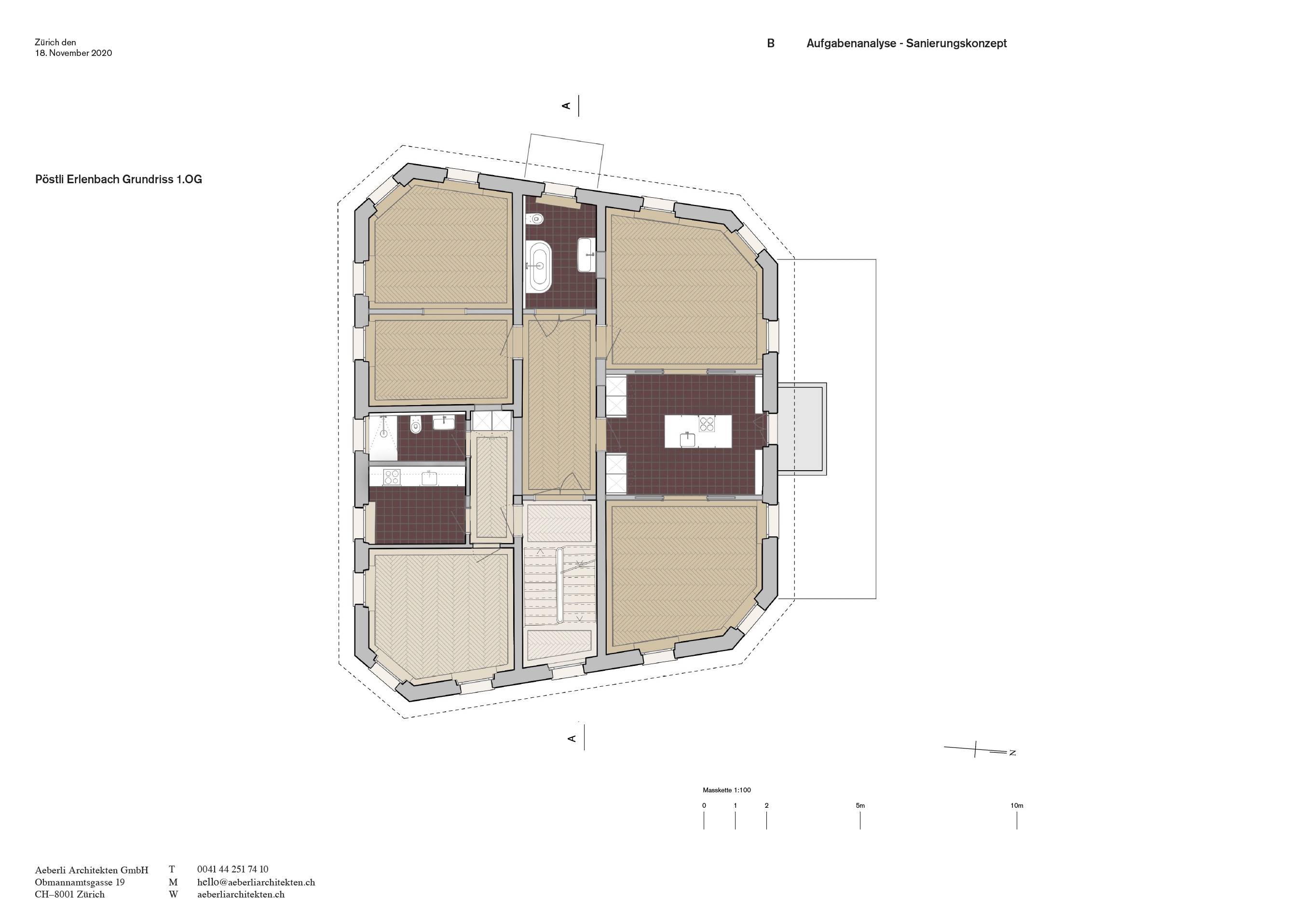
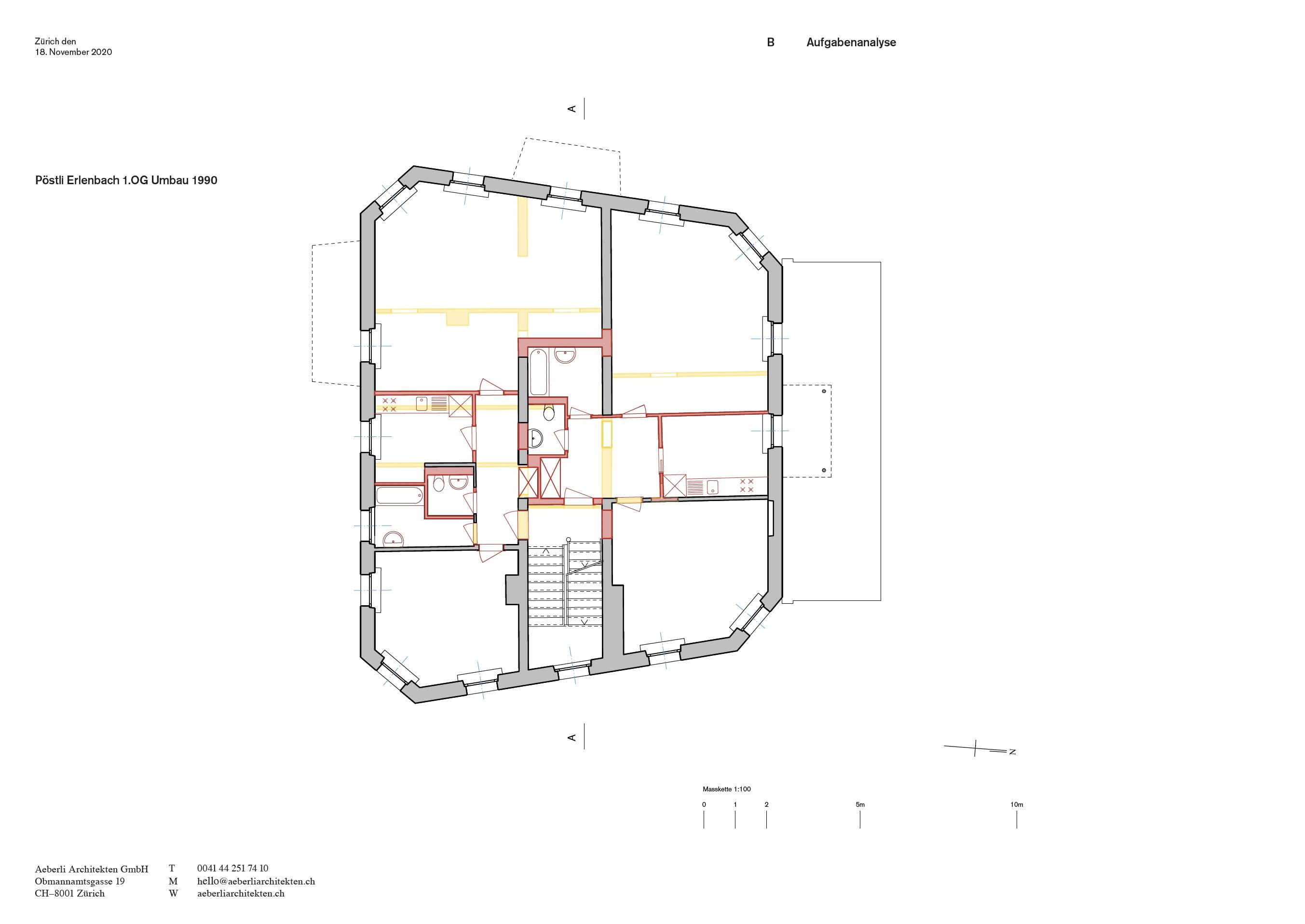
Der repräsentative Bau der Belle Époque mit der aufwändigen und sorgfältigen Detaillierung der Fassaden im Stil der französischen Renaissance wurde durch unsensible Renovationen und Umbauten im Innern beeinträchtigt, ist aber im Grossen und Ganzen aber weitgehend original erhalten. aus. Wir haben ein zurückhaltendes Projekt voregeschlagen, welches mit den Geschossgrundrissen insbesonere die strukturelle Substanzklärung im Inneren klärt und damit auch einen Beitrag zur Schutzdefinition beitragen möchte.
Altes Postgebäude, Erlenbach ZH
Bauherrschaft: Gemeinde Erlenbach
Bausumme BKP 1–9:
Nettogeschossfläche:
Volumen nach SIA 416:
Arbeitsumfang: -
Leistung: Studienaufrag selektiv
Projektstart/–ende: 2023
Fotos:
Gesamtinstandsetzung Inventarobjekt Postgebäude von 1783
Eingeladenes Planerwahlverfahren
Eingeladenes Planerwahlverfahren
MehrWeniger